Zaanstraat | Amsterdam

  • icon new

    Oppervlakte

    345 m2

  • icon new

    Te koop vanaf

    37 m2

  • huurprijs label

    Koopsom

    € 165.150 - Vrij op naam

Stijlvolle werkstudio’s in de iconische Spaarndammerbuurt

9 unieke werkstudio’s in het duurzame nieuwbouwproject Bredius. Perfect als creatieve werkplek, kantoorruimte, atelier of voor dienstverlening. Een plek voor ondernemers om te groeien in een van de meest bruisende buurten van Amsterdam. Het ontwerp, geïnspireerd op de Amsterdamse School, combineert duurzame materialen en genuanceerd baksteen in verfijnd metselwerk in de kleuren van de buurt. De werkstudio’s vormen een levendige plint aan de Zaanstraat. Twee opvallende poorten leiden naar een groene binnentuin – een oase in de stad. De horeca en het terras op de zuidpunt worden een ontmoetingsplek voor de buurt. Hier komt alles samen: wonen, werken en ontspannen.

– Ideaal voor starters en kleine (lokale) ondernemers
– Betaalbare ruimtes in een populaire buurt
– Goed bereikbaar
– Inspirerende werkomgeving

Het ontwerp van Bredius is een moderne uitbreiding van de rijke historie van de Spaarndammerbuurt. Circulaire bouwmaterialen en energiezuinige installaties, zoals warmtepompen met warmte- en koudeopslag in de grond. De Spaarndammerbuurt ademt één en al Amsterdamse School.

Bredius Werkstudio’s verrijzen aan de Zaanstraat, midden in de levendige Spaarndammerbuurt. Een wijk met een rijke historie, een unieke architectonische uitstraling en een dynamische mix van culturele hotspots. Geen wonder dat deze buurt bijzonder geliefd is bij creatieve bedrijven, zoals kunstenaars, ontwerpers en kleine ondernemers. Veel van hen zoeken een inspirerende én betaalbare werkruimte – precies wat de werkstudio’s in Bredius bieden.

Locatievoordelen

– Gelegen in de levendige Spaarndammerbuurt, omringd door historie en modern gemak
– Uitstekend bereikbaar met fiets, OV en auto
– Nabij voorzieningen zoals horeca, parken en winkels
– Het Westerpark en de gezellige Haarlemmerdijk liggen op loopafstand via de Zaanstraat

De Bredius Werkstudio’s zijn duurzaam, zowel in energieverbruik als in materialen. De Groene Kamer in het hart van het gebouw is een uitnodigende ruimte waar bewoners en bezoekers samen kunnen komen.

Het weelderige groen vormt een natuurlijk tegenwicht voor de stadse setting. Nestkasten, insectenhotels en andere faunavoorzieningen maken Bredius tot een gastvrije omgeving voor vogels, vleermuizen, vlinders en bijen. In de binnentuin, op het dak en via het groen aan de gevels wordt regenwater opgevangen en langzaam afgevoerd. Kortom, Bredius is rainproof en diervriendelijk.

Parkeren
– Kopers of huurders van een werkstudio hebben de mogelijkheid om een afsluitbare garagebox of parkeerplaats te kopen of te huren;
– Daarnaast werken we samen met aanbieders van elektrische deelauto’s, bakfietsen en stadsfietsen. Zo kunt u dichtbij uw werkstudio gemakkelijk gebruikmaken van gedeelde voorzieningen wanneer u daar behoefte aan heeft.

Werkstudio
Specificaties
– Oppervlakte: ca. 36 m² tot 47 m² per studio;
– Studio’s zijn te koppelen;
– Ruimte daghoreca: ca. 178 m² v.v.o.;
– Flexibele indelingsmogelijkheden;
– Mogelijkheid om een parkeerplaats te kopen of te huren;
– Energiezuinig.

Gekoppelde werkstudio’s
Voorzieningen
– Eigen entree, moderne installaties, flexibele indelingsmogelijkheden;
– De werkstudio’s bieden de mogelijkheid om gekoppeld te worden, waardoor extra ruimte en flexibiliteit ontstaat;
– Het project is voorzien van duurzame en energiezuinige oplossingen, zoals een WKO-pomp die gebruikmaakt van aardwarmte en -koeling. Daarnaast is het gebouw Paris-proof en uitgerust met HR++-glas. Alle benodigde aansluitingen in de meterkast zijn reeds aanwezig.
– De werkstudio’s worden casco opgeleverd, zodat u ze volledig naar eigen wens kunt afwerken.
– Voor extra comfort kunt u ervoor kiezen om zelf vloerverwarming in uw werkstudio aan te brengen.

Werkstudio’s
bouwnummer 112 Zaanstraat 479 verkocht
bouwnummer 113 Zaanstraat 477 verkocht
bouwnummer 114 Zaanstraat 447 46,3 m² verkocht
bouwnummer 115 Zaanstraat 445 verkocht
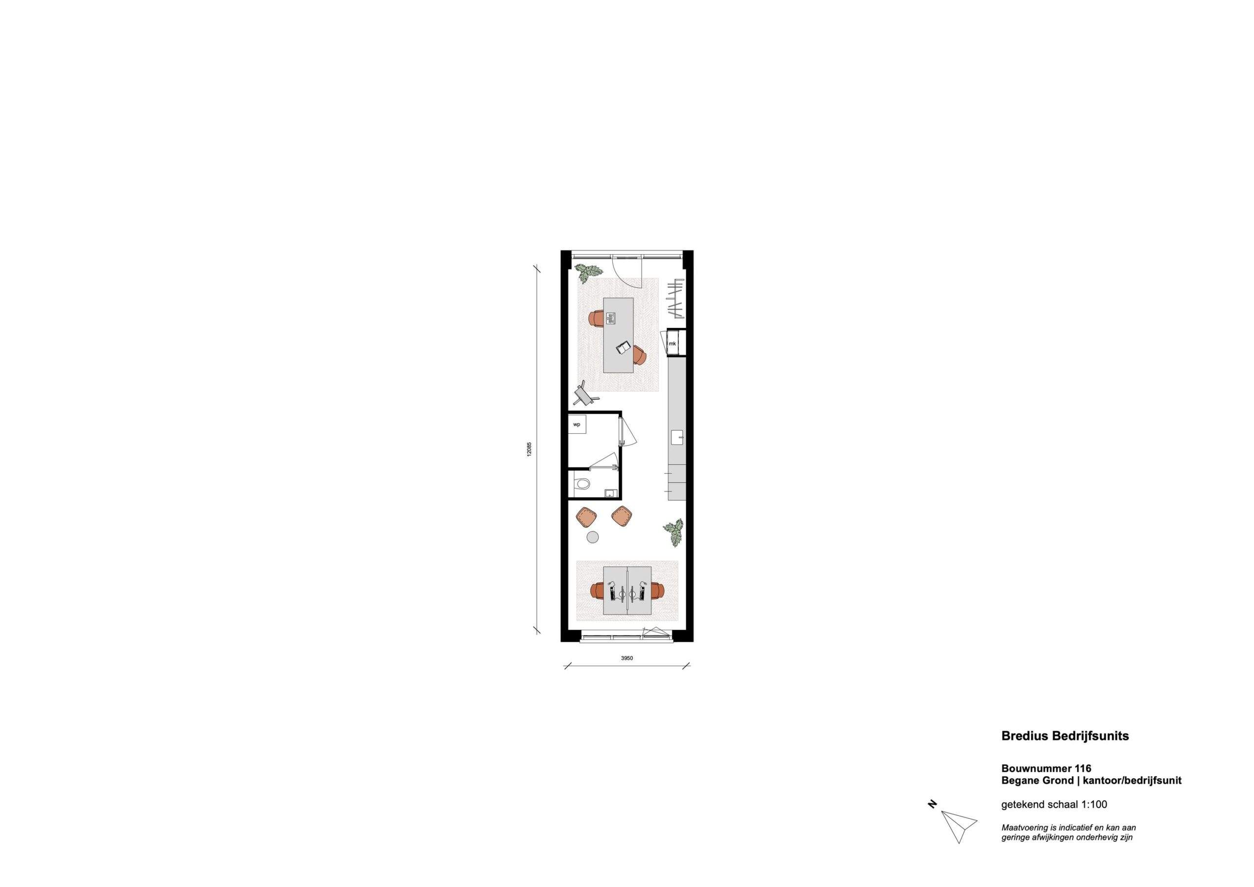
bouwnummer 116 Zaanstraat 443 verkocht
bouwnummer 117 Zaanstraat 441 38,7 m² verkocht
bouwnummer 118 Zaanstraat 439 36,7 m² verkocht
bouwnummer 119 Zaanstraat 437 verkocht

Horeca unit
bouwnummer 120 Vrouwenverdrietstraat 2. 177,2 m² v.v.o. € 797.400,00 verkocht onder voorbehoud
Prijzen zijn v.o.n. excl. BTW, incl. afgekochte eeuwigdurende erfpacht

Lees meer groene pijl

Kenmerken

Algemeen

Koopsom € 165.150 - Vrij op naam

Aanvaarding Per datum

Aanvaardingsdatum 01/09/2026

Bouw

Hoofdfunctie Kantoorruimte

Bouwjaar 2026

Oppervlakten

Oppervlakte 345 m2 (in units vanaf 37 m2)

Indeling

Aantal bouwlagen 1 bouwlagen

Kosteloos advies op maat

Wij vinden snel een geschikte kantoorruimte die bij u past.

Dit wil ik! Clr arrow icon