Kansen zien, maar ook toe durven slaan.
Wij vinden de perfecte match tussen huurder en eigenaar.
Solide én creatief tijdens het hele traject.
Scherpe specialisten met internationale kennis.
Solide en creatief gedurende het hele proces.
Accurate waardebepaling, een delicate kunst.
Ruimte begrijpen, maar ook strategisch benutten.
1.277 m2
1.277 m2
Twee intern gekoppelde kantoorgebouwen, gelegen aan de Sarphatistraat 4-6 in het centrum van Amsterdam. Deze monumentale gebouwen zijn gebouwd in 1875 en beschikken over 1.277 m² v.v.o. kantoorruimte en twaalf parkeerplekken op het achtergelegen terrein, wat uniek is voor de binnenstad.
De inspirerende zakelijke locatie is zeer gunstig gelegen aan de oostelijke zijde van de grachtengordel, op een steenworp afstand van de bruisende wijk De Pijp en om de hoek van het Amstelhotel. In de directe omgeving bevinden zich het sfeervolle Frederiksplein en de bruisende Utrechtsestraat, die bekend staat om zijn gevarieerde aanbod van boetieks, restaurants en cafés. Tevens zijn er gerenommeerde bedrijven zoals McKinsey & Company en De Nederlandsche Bank in de buurt gevestigd.
Door de centrale ligging is het object goed te bereiken met zowel het openbaar vervoer als met eigen vervoer. Metrohalte Weesperplein bevindt zich op 6 minuten loopafstand en via de Wibautstraat is de ringweg A-10 altijd gemakkelijk te bereiken.
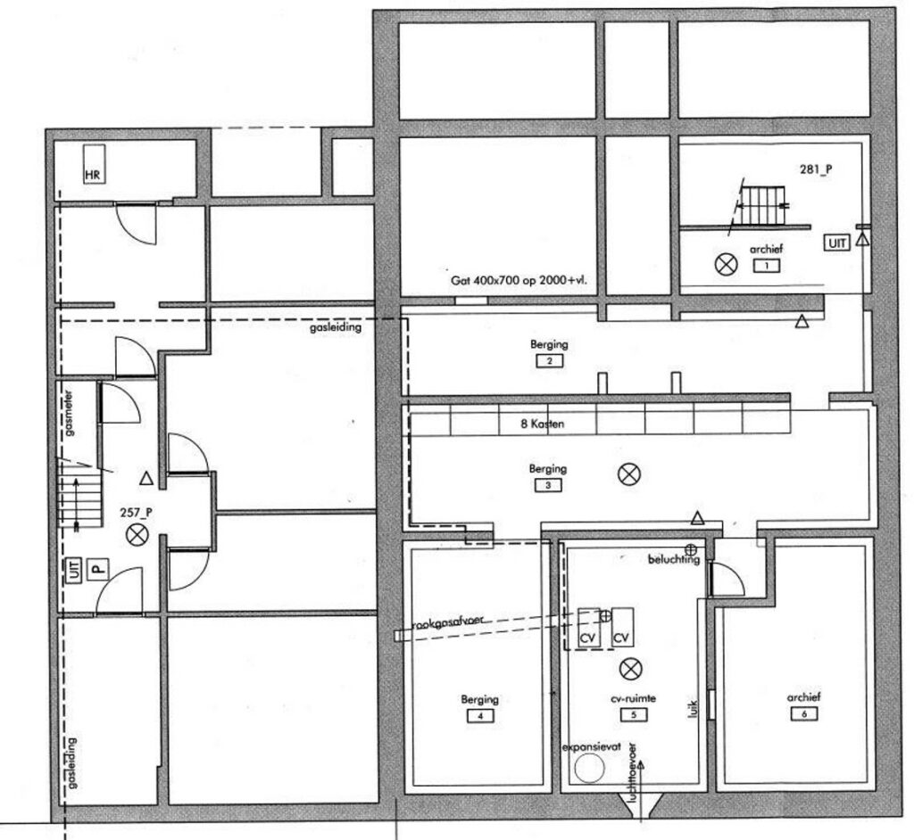
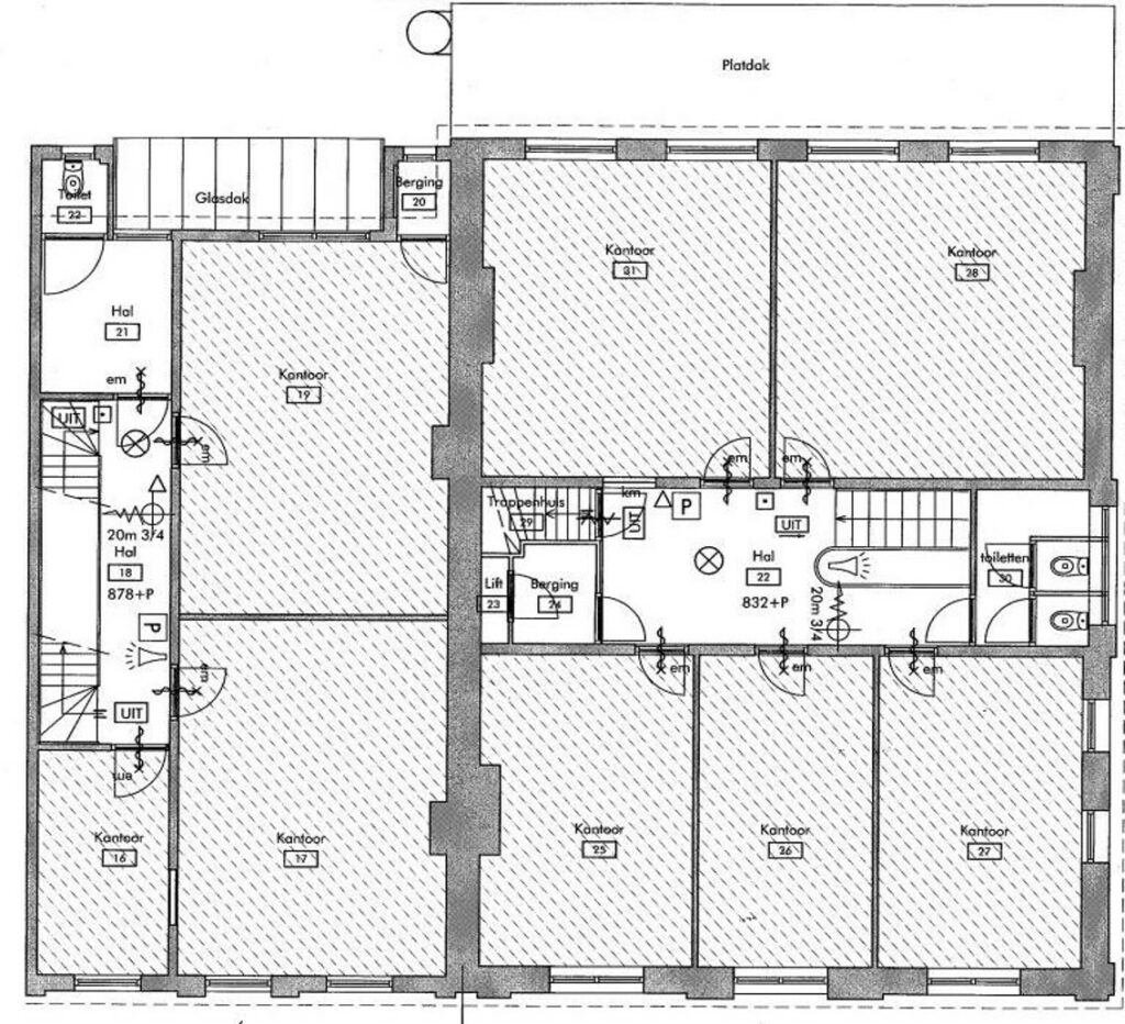
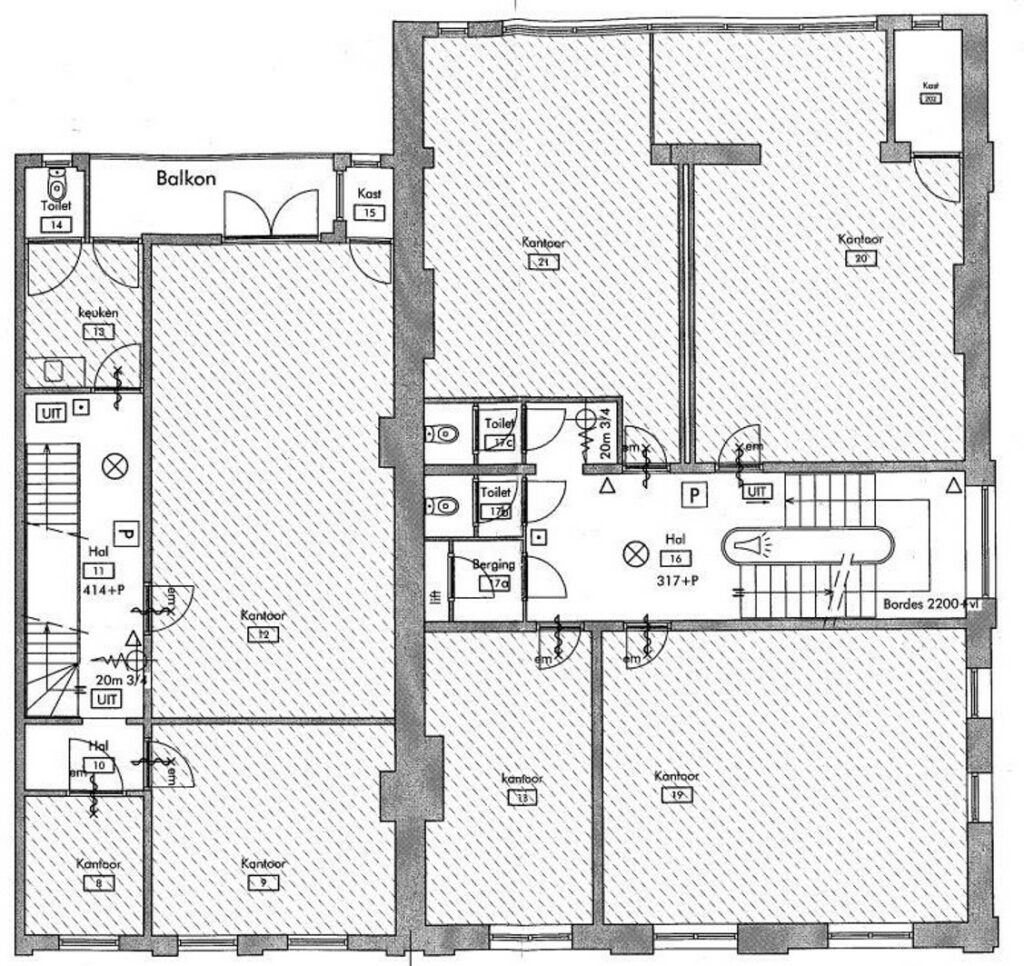
Vloeroppervlakte
Een totaal van 1.277 m² v.v.o. is beschikbaar, als volgt verdeeld:
Kelder 158,30 m²
Begane grond 353,83 m²
Eerste verdieping 275,22 m²
Tweede verdieping 249,48 m²
Derde verdieping 240,18 m²
* Het object wordt volledig gerenoveerd opgeleverd.
Aanvaarding
In overleg.
Huurprijs
Op aanvraag.
Servicekosten
Nader te bepalen.
Huurtermijn
5 jaar + 5 jaar.
Parkeren
12 parkeerplaatsen.
Bereikbaarheid
Per openbaar vervoer
Het object is goed bereikbaar door middel van het openbaar vervoer. Vanaf het Amsterdam Centraal Station is het object met de metro in 10 minuten te bereiken via metrohalte Weesperplein. Via deze metroverbinding is ook het Amstel Station perfect te bereiken. De Noord/Zuidlijn is via station Weesperplein binnen twee haltes te bereiken.
Per auto
Het object ligt in het oostelijke gedeelte van de grachtengordel en is per auto via de Wibautstraat goed bereikbaar. Via de Wibautstraat bereikt u gemakkelijk de ringweg A-10 of de Piet Heintunnel naar Amsterdam Noord.
Prijs Prijs op aanvraag
Aanvaarding Direct
Hoofdfunctie Kantoorruimte
Oppervlakte 1.277 m2 (in units vanaf 1277 m2)
Aantal bouwlagen 3 bouwlagen